---
title: "Hine Bakkevej"
description: "1-23"
date: "2025-10-02"
created: "2025-06-30"
---

-

https://maps.google.dk/?q=54.9352332,10.7308136

# Hine Bakkevej

Afdeling 23

## Velkommen til Hine Bakkevej

8 ældreboliger med kommunal visitation opført i 1998

## Fakta for afdelingen...

Fællesfaciliteter

Ja

Fællesrum

Elevator

Nej

Carport

Nej

Husdyr

Ja

Der gives tilladelse til en hund eller en kat

Energimærkning

Se mere

B

## Boliger i afdelingen

Ældrebolig

2 værelses

Ældrebolig

Boligtype

Værelser

Størrelse

Husleje

Indskud/dp

Plantegning

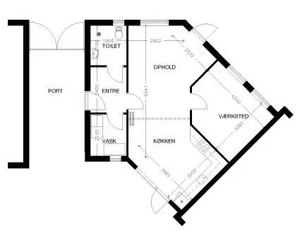
Ældrebolig

2

59.5 m²

5580 kr.

12800 kr.

![](https://www.boligselskabetlangeland.dk/i/MOLIRIMEDIA/ecf9e747-83f5-4d99-2b93-08dda22a7775?width=800)






![](https://www.boligselskabetlangeland.dk/i/MOLIRIMEDIA/ecf9e747-83f5-4d99-2b93-08dda22a7775?width=800)

![](https://www.boligselskabetlangeland.dk/i/MOLIRIMEDIA/afffc82e-9258-4c2b-2b87-08dda22a7775?width=800)

![](https://www.boligselskabetlangeland.dk/i/MOLIRIMEDIA/b4db4c89-107f-4e32-2b77-08dda22a7775?width=800)

![](https://www.boligselskabetlangeland.dk/i/MOLIRIMEDIA/ecf9e747-83f5-4d99-2b93-08dda22a7775?width=800)

![](https://www.boligselskabetlangeland.dk/i/MOLIRIMEDIA/afffc82e-9258-4c2b-2b87-08dda22a7775?width=800)

![](https://www.boligselskabetlangeland.dk/i/MOLIRIMEDIA/b4db4c89-107f-4e32-2b77-08dda22a7775?width=800)

## Afdelingens afstande til

Indkøbsmuligheder

meter

Skole

meter

Dagsinstitution

meter

## Afdelingsdokumenter

Her finder du nyttig information om din afdeling, såsom husorden, vedligeholdelse af dit lejemål, referater m.m.

###

                                                Husorden

[Husorden, 20040519.docx](https://www.boligselskabetlangeland.dk/p/Files/Boligdata/AfdelingsdokumenterFraEG/01_023/Husorden%20aktuel/Husorden--20040519.docx)

###

                                                Repræsentantskabsmøde

[Referat repræsentantskabsmøde 2025.pdf](https://www.boligselskabetlangeland.dk/p/Files/Boligdata/SelskabsdokumenterFraEG/1/Referat_repr&#xE6;sentantskabsm&#xF8;de/Referat-repr&#xE6;sentantskabsm&#xF8;de-2025.pdf)
                                            [Referat repræsentantskabsmøde 2024.pdf](https://www.boligselskabetlangeland.dk/p/Files/Boligdata/SelskabsdokumenterFraEG/1/Referat_repr&#xE6;sentantskabsm&#xF8;de/Referat-repr&#xE6;sentantskabsm&#xF8;de-2024.pdf)
                                            [20250618- referat repræsentantskabsmøde.pdf](https://www.boligselskabetlangeland.dk/p/Files/Boligdata/SelskabsdokumenterFraEG/1/Referat_repr&#xE6;sentantskabsm&#xF8;de/20250618--referat-repr&#xE6;sentantskabsm&#xF8;de.pdf)
                                            [20240619 Referat Repræsentantskabsmøde.pdf](https://www.boligselskabetlangeland.dk/p/Files/Boligdata/SelskabsdokumenterFraEG/1/Referat_repr&#xE6;sentantskabsm&#xF8;de/20240619-Referat-Repr&#xE6;sentantskabsm&#xF8;de.pdf)
                                            [20230614 Referat Repræsentantskabsmøde.pdf](https://www.boligselskabetlangeland.dk/p/Files/Boligdata/SelskabsdokumenterFraEG/1/Referat_repr&#xE6;sentantskabsm&#xF8;de/20230614-Referat-Repr&#xE6;sentantskabsm&#xF8;de.pdf)
                                            [20220615 Referat Repræsentantskabsmøde.pdf](https://www.boligselskabetlangeland.dk/p/Files/Boligdata/SelskabsdokumenterFraEG/1/Referat_repr&#xE6;sentantskabsm&#xF8;de/20220615-Referat-Repr&#xE6;sentantskabsm&#xF8;de.pdf)
                                            [20211026 Referat Repræsentantskabsmøde\_\_.pdf](https://www.boligselskabetlangeland.dk/p/Files/Boligdata/SelskabsdokumenterFraEG/1/Referat_repr&#xE6;sentantskabsm&#xF8;de/20211026-Referat-Repr&#xE6;sentantskabsm&#xF8;de__.pdf)
                                            [20211026 Referat Repræsentantskabsmøde--.pdf](https://www.boligselskabetlangeland.dk/p/Files/Boligdata/SelskabsdokumenterFraEG/1/Referat_repr&#xE6;sentantskabsm&#xF8;de/20211026-Referat-Repr&#xE6;sentantskabsm&#xF8;de--.pdf)
                                            [20201021 Referat Repræsentantskabsmøde.pdf](https://www.boligselskabetlangeland.dk/p/Files/Boligdata/SelskabsdokumenterFraEG/1/Referat_repr&#xE6;sentantskabsm&#xF8;de/20201021-Referat-Repr&#xE6;sentantskabsm&#xF8;de.pdf)
                                            [20190619 Referat Repræsentantskabsmøde.pdf](https://www.boligselskabetlangeland.dk/p/Files/Boligdata/SelskabsdokumenterFraEG/1/Referat_repr&#xE6;sentantskabsm&#xF8;de/20190619-Referat-Repr&#xE6;sentantskabsm&#xF8;de.pdf)
                                            [20180613 Referat Repræsentantskabsmøde.pdf](https://www.boligselskabetlangeland.dk/p/Files/Boligdata/SelskabsdokumenterFraEG/1/Referat_repr&#xE6;sentantskabsm&#xF8;de/20180613-Referat-Repr&#xE6;sentantskabsm&#xF8;de.pdf)
                                            [20170614 Referat Repræsentantskabsmøde.pdf](https://www.boligselskabetlangeland.dk/p/Files/Boligdata/SelskabsdokumenterFraEG/1/Referat_repr&#xE6;sentantskabsm&#xF8;de/20170614-Referat-Repr&#xE6;sentantskabsm&#xF8;de.pdf)
                                            [20160614 Referat Repræsentantskabsmøde.pdf](https://www.boligselskabetlangeland.dk/p/Files/Boligdata/SelskabsdokumenterFraEG/1/Referat_repr&#xE6;sentantskabsm&#xF8;de/20160614-Referat-Repr&#xE6;sentantskabsm&#xF8;de.pdf)
                                            [20150615 Referat Repræsentantskabsmøde.pdf](https://www.boligselskabetlangeland.dk/p/Files/Boligdata/SelskabsdokumenterFraEG/1/Referat_repr&#xE6;sentantskabsm&#xF8;de/20150615-Referat-Repr&#xE6;sentantskabsm&#xF8;de.pdf)
                                            [20140616 Referat Repræsentantskabsmøde.pdf](https://www.boligselskabetlangeland.dk/p/Files/Boligdata/SelskabsdokumenterFraEG/1/Referat_repr&#xE6;sentantskabsm&#xF8;de/20140616-Referat-Repr&#xE6;sentantskabsm&#xF8;de.pdf)
                                            [20130618 Referat Repræsentantskabsmøde.pdf](https://www.boligselskabetlangeland.dk/p/Files/Boligdata/SelskabsdokumenterFraEG/1/Referat_repr&#xE6;sentantskabsm&#xF8;de/20130618-Referat-Repr&#xE6;sentantskabsm&#xF8;de.pdf)
                                            [20120619 Referat Repræsentantskabsmøde.pdf](https://www.boligselskabetlangeland.dk/p/Files/Boligdata/SelskabsdokumenterFraEG/1/Referat_repr&#xE6;sentantskabsm&#xF8;de/20120619-Referat-Repr&#xE6;sentantskabsm&#xF8;de.pdf)
